ZSG高效重型振動篩
概述
ZSG系列高效重型振動篩由激振裝置、篩箱、防塵罩、落科斗、減振裝置、底座等部分組成。工作時,由激振器產生的激振力通過篩箱傳遞給篩箱內的篩面上,因激振器產生的激振力為縱向力,迫使篩箱帶動篩網面作縱向前后位移,在一定條件下.篩網面上的物料因受激振力作用而被向前拋起,落下時小于篩孔的物料則透篩而落到下層物料在篩網面上的運動軌跡為拋物運動,由于這樣周而復始的物料運動,從而完成物料篩分作業。
特點
篩面傾斜安裝,與其它同類型產品相比重型振動篩-ZSG系列高效重型振動篩具有下列特點:
1、體積小,篩分能力大;
2、重量輕,便于安裝及工藝布置;
3、能耗少,可節約大量能源;
4、價格低,備件量極少;
5、結構簡單,造型美觀;
6、篩網由小塊拼裝,且更換極為簡便。
ZSG系列高效重型振動篩結構圖:
參數
型號 |
最大給料 粒度 mm |
處理量 t/h |
配用電機 型號 |
額定電壓 V |
額定功率 kW |
振動次數 次/分 |
雙振幅 mm |
最大激振力 kN |
有效篩面 面積 m2 |
篩孔尺寸 mm |
總重量 kg |
|
單層 |
雙層 |
|||||||||||
ZSG-10×20 |
≤250 |
10-200 |
YZS-30/6 |
380 |
2.4×2 |
960 |
8-12 |
3200×2 |
2 |
3-50 |
2300 |
2500 |
ZSG-10×30 |
≤350 |
15-250 |
YZS-30/6 |
380 |
2.4×2 |
960 |
8-12 |
3200×2 |
3 |
3-150 |
3300 |
3600 |
ZSG-15×30 |
≤400 |
20-350 |
YZS-50/6 |
380 |
3.2×2 |
960 |
8-12 |
3200×2 |
4.5 |
3-200 |
5100 |
5500 |
ZSG-15×40 |
≤400 |
25-400 |
YZS-50/6 |
380 |
3.2×2 |
960 |
6-10 |
3200×2 |
6 |
3-200 |
6800 |
7300 |
ZSG-15×50 |
≤400 |
30-500 |
YZS-75/6 |
380 |
5.5×2 |
960 |
6-10 |
3200×2 |
7.5 |
3-200 |
8450 |
9100 |
ZSG-20×50 |
≤400 |
50-500 |
YZS-75/6 |
380 |
5.5×2 |
960 |
6-10 |
3200×2 |
10 |
3-200 |
11100 |
12000 |
ZSG-20×60 |
≤400 |
60-600 |
YZS-100/6 |
380 |
7.5×2 |
720 |
10-15 |
3200×2 |
12 |
3-200 |
13800 |
14900 |
ZSG-20×70 |
≤400 |
65-600 |
YZS-100/6 |
380 |
7.5×2 |
720 |
8-12 |
3200×2 |
14 |
3-200 |
17500 |
19800 |
ZSG-20×80 |
≤400 |
65-600 |
YZS-100/6 |
380 |
7.5×2 |
720 |
6-12 |
3200×2 |
16 |
3-200 |
21820 |
23400 |
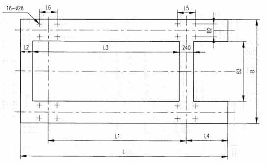
型號 | ZSGB-10*20 | ZSGB-10*30 | ZSGB-15*30 | ZSG-15*40 | ZSG-15*50 | ZSGB-20*50 | ZSG-20*60 | ZSGB-20*70 | ZSG-20*18 |
L | 2000 | 3000 | 3000 | 4000 | 500 | 5000 | 6000 | 7000 | 8000 |
L1 | 119 | 156 | 156 | 225 | 225 | 225 | 225 | 225 | 225 |
L2 | 200 | 240 | 240 | 240 | 240 | 240 | 240 | 240 | 240 |
L3 | 1278 | 1991 | 1991 | 2714 | 3502 | 3502 | 4292 | 5082 | 5872 |
L4 | 403 | 613 | 613 | 823 | 1033 | 1033 | 1243 | 1453 | 1663 |
B | 1620 | 1620 | 2120 | 2120 | 2120 | 2620 | 2620 | 2620 | 2620 |
B1 | 1120 | 1120 | 1620 | 1620 | 1620 | 2120 | 2120 | 2120 | 2120 |
B2 | 1000 | 1000 | 1500 | 1500 | 1500 | 2000 | 2000 | 2000 | 2000 |
B3 | 1000 | 1000 | 1500 | 1500 | 1500 | 2000 | 2000 | 2000 | 2000 |
H | 1584 | 2019 | 2019 | 2422 | 2465 | 2465 | 2610 | 2968 | 3493 |
H1 | 1384 | 1769 | 1769 | 2172 | 2537 | 2537 | 2932 | 3295 | 3659 |
H2 | 948 | 1262 | 1262 | 1626 | 1990 | 1990 | 2353 | 2717 | 3081 |
H3 | 300 | 350 | 350 | 450 | 450 | 450 | 450 | 450 | 450 |
H4 | 789 | 860 | 860 | 900 | 900 | 931 | 931 | 931 | 931 |
H5 | 400 | 434 | 434 | 474 | 747 | 505 | 505 | 505 | 505 |
H6 | 150 | 200 | 200 | 200 | 200 | 200 | 200 | 200 | 200 |
I | 920 | 1120 | 1120 | 1320 | 1320 | 1320 | 1320 | 1320 | 1320 |
I1 | 800 | 1000 | 1000 | 1200 | 1200 | 1200 | 1200 | 1200 | 1200 |
I2 | 250 | 350 | 350 | 450 | 500 | 500 | 500 | 500 | 500 |
Φ | 300 | 300 | 350 | 350 | 400 | 400 | 400 | 400 | 400 |
型號 | ZSG-10*20 | ZSG-10*30 | ZSG-15*30 | ZSG-15*40 | ZSG-15*50 | ZSG-20*50 | ZSG-20*60 | ZSG-20*70 | ZSG-20*80 | |||||||||
單層 | 雙層 | 單層 | 雙層 | 單層 | 雙層 | 單層 | 雙層 | 單層 | 雙層 | 單層 | 雙層 | 單層 | 雙層 | 單層 | 雙層 | 單層 | 雙層 | |
L | 1881 | 1650 | 2844 | 2520 | 2844 | 2520 | 2775 | 3520 | 4775 | 4520 | 4775 | 4520 | 5775 | 5520 | 6775 | 6520 | 7775 | 7520 |
L1 | 1411 | 1250 | 2025 | 1770 | 2025 | 1770 | 2526 | 2121 | 3526 | 3121 | 3526 | 3121 | 4526 | 4121 | 5056 | 4651 | 6056 | 5651 |
L2 | 200 | 200 | 240 | 240 | 240 | 240 | 240 | 240 | 240 | 240 | 240 | 240 | 240 | 240 | 240 | 240 | 240 | 240 |
L3 | 1278 | 1047 | 1991 | 1667 | 1991 | 1667 | 2712 | 2457 | 3502 | 3247 | 3502 | 3247 | 4292 | 4037 | 5082 | 5827 | 5872 | 4617 |
L4 | 350 | 350 | 530 | 530 | 530 | 530 | 999 | 999 | 999 | 999 | 999 | 999 | 999 | 999 | 1469 | 1469 | 1469 | 1469 |
L5 | 300 | 300 | 150 | 450 | 450 | 450 | 500 | 500 | 500 | 500 | 500 | 500 | 600 | 600 | 600 | 700 | 700 | 700 |
L6 | 300 | 300 | 350 | 250 | 350 | 350 | 350 | 350 | 350 | 350 | 350 | 350 | 350 | 350 | 350 | 350 | 350 | 350 |
B | 1620 | 1620 | 1620 | 1620 | 2120 | 2120 | 2120 | 2120 | 2120 | 2120 | 2620 | 2620 | 2620 | 2620 | 2620 | 2620 | 2620 | 2620 |
B1 | 1370 | 1370 | 1370 | 1370 | 1870 | 1870 | 1870 | 1870 | 1870 | 1870 | 2370 | 2370 | 2370 | 2370 | 2370 | 2370 | 2370 | 2370 |
B2 | 215 | 215 | 215 | 215 | 215 | 215 | 215 | 215 | 215 | 215 | 215 | 215 | 215 | 215 | 215 | 215 | 215 | 215 |
B3 | 1000 | 1000 | 1000 | 1000 | 1500 | 1500 | 1500 | 1500 | 1500 | 1500 | 2000 | 2000 | 2000 | 2000 | 2000 | 2000 | 2000 | 2000 |
用途
重型振動篩-ZSG系列高效重型振動篩敞開型(ZSG—口×口)為座式,無防塵蓋板結構,用于大篩分能力,無粉塵污染的顆料物料的篩分作業。

相關產品
-
DD/ZD礦用單軸振動篩
礦用單軸振動篩是一種作圓運動的振動篩。可供黑色、有色以及非金屬礦山的輔助或獨立篩分作業中作中等粒度的分級之用。本篩子具有結構簡單,動轉平穩,工作可靠等優點。
立即了解?DD/ZD礦用單軸振動篩
-
香蕉篩
香蕉篩主要由篩箱、篩網、激振器、減振彈簧和下座架等組成。香蕉篩是由電動機和激振器作為振動源,激振器主要是由偏心軸、皮帶輪、軸承及軸承座等組成,激振器安裝在篩箱側板上,并由電動機通過三角皮帶或軟連接與其相連,
立即了解?香蕉篩
-
DZSF梳蓖式振動篩
梳蓖式電機振動篩是我廠根據礦山、鋼鐵企業等設計制做的一種新式振動篩。
立即了解?DZSF梳蓖式振動篩
-
HSSJ精細篩分機
-
GPS系列高頻振動脫水篩
本篩機適用于煤泥或尾礦的脫水處理,可廣泛應用于選煤廠、選礦廠等。該系列篩機采用雙電機驅動白同步箱式振動器,振動頻率高,具有處理能力大,脫水效果好、維護方便等優點。
立即了解?GPS系列高頻振動脫水篩
-
ZSLX系列冷礦振動篩
ZSLX系列冷礦振動篩的運動軌跡近似直線,振動篩主要用于冶金部門對溫度在150℃以下松散的顆粒狀冷燒結礦進行分級。
立即了解?ZSLX系列冷礦振動篩
-
熱礦振動篩
-
ZWS振網篩
動態
-
23
2021-12
了解高效重型振動篩的具體結構特點
高效重型振動篩處理量大、篩分效率高、篩網更換方便,適用于燒結炭、自然礦、焦炭及磨料磨具、化工原料等粉粒物料的高效能篩分,以及脫水、脫介、選煤作業。
-
20
2012-05
振動篩常見電氣故障的分析解決
振動電動機的進線接口處電纜線擺動幅度大,內部的銅線很容易斷,
-
15
2012-04
處理制砂機常見故障的方法
制砂機適用于軟或中硬和極硬物料的破碎、整形,廣泛應用于各種礦石、水泥、耐火材料、鋁凡土熟料、金剛砂、玻璃原料、機制建水泥螺旋輸送機筑砂、石料以及各種冶金礦渣,特別對碳化硅、金剛砂、燒結鋁.. 高效重型振動篩 制砂機適用于軟或中硬和極硬物料的破碎、整形,廣..
-
07
2012-04
振動篩篩分技術精度不達標問題與解決方法
振動篩篩分技術精度不達標問題總結如下:1.篩網的篩孔堵塞 (要增加防堵塞裝置)2.投進振動篩的物料水分過大(粘度大,適當經過烘干后投入振動篩)3.振動篩篩面給料不均(增加物料分.. 高效重型振動篩 慣性振動給料斗達標問題總結如下:圓振篩裝置)振動喂料機粘度大,..
-
26
2010-07
SZZ系列自定義中心振動篩
SZZ系列自定義中心振動篩運動軌跡為圓,篩機機構簡單,堅固可靠,維修方便,效率高,標準是采用的QJ/AKJ02.08-89。
熱銷產品
-
DZSF直線振動篩
DZSF系列直線振動篩是由篩箱、篩框、振動電機、減振系統及座架等組成。直線振動篩是用振動電機作為振動源,固定在篩箱上兩臺相同的振動電機做相反方向自同步旋轉,振動電機所帶的偏心塊在旋轉時各個瞬間位置所產生的離心力之分力沿拋擲方向作往復運動
立即了解?DZSF直線振動篩
-
CZ系列倉壁振動器
-
ZG系列慣性振動器
-
GZ系列電磁振動給料機
GZ系列電磁振動給料機在生產流程中,用于把塊狀、顆粒狀、粉狀物料從貯料倉或漏斗中定量、均勻、連續地給到受料裝置中去。
立即了解?GZ系列電磁振動給料機